Casa en Venta en Maipu, Mendoza.

Maipu Mendoza

B° Natania 47, Luzuriaga

EL ACONCAGUA 3237

2
3
95m2
105m2

Descripción

FINANCIO / PERMUTO

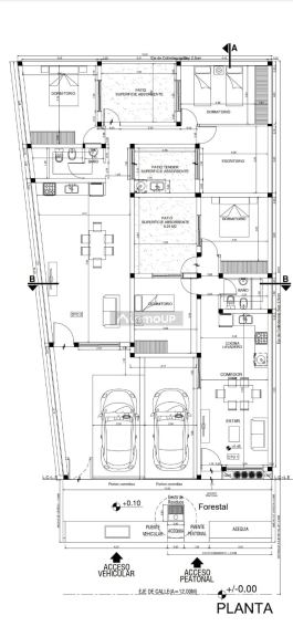
- Propiedad en pozo ubicada en Barrio Natania 47, Maipú, Mendoza, en un entorno residencial en crecimiento, ideal tanto para vivienda como para inversión.

- Se trata de una casa EN POZO de 95 m² cubiertos y 105 m² totales, con una distribución práctica y bien aprovechada. Cuenta con living, comedor y cocina integrados, generando un espacio cómodo, funcional y con buena iluminación natural.

- Dispone de tres dormitorios y 2 baños completos, pensados para cubrir las necesidades de una familia o como opción de renta.

- En el exterior, la propiedad incluye estacionamiento propio y un patio interno de 10 m², que aporta ventilación, luz y un espacio adicional para uso diario.

- Una vivienda compacta, funcional y lista para adaptarse a distintas necesidades, dentro de un barrio consolidado y con buena proyección en Maipú.

Detalles:
> 1 estacionamiento
> 3 habitaciones
> 2 baños completos
> Living-comedor-cocina
> Patio interno

USD 95.000
FINANCIO / PERMUTO
Insta: @inmobiliaria.cerroalto
Matrícula: 1891


Datos de la propiedad

  • ID#
    320502-36
  • Tipo de construcción
    Casa
  • Condición
    Venta
  • Superficie Total m2
    105
  • Dormitorios
    3
  • Cochera
    Cochera Pasante
  • Superficie Cubierta m2
    95
  • Baños
    2
  • Antigüedad
    A Estrenar
  • Tiene Expensas
    No
  • Financiación
  • Apto Crédito Hipotecario
  • Cantidad de Ambientes
    6 o mas
  • Estado de Conservación
    Excelente
  • ¿Recibe Permuta?

Ubicación

El Aconcagua 3237

Avisos similares